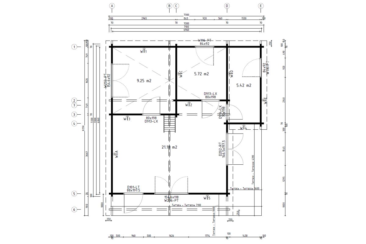
| Eksterne dimensioner: | 7,3 x 7,2 m |
| Væghøjde: | 2,40 m |
| Samlet højde: | 3,80 m |
| Vægtykkelse: | 70 mm |
| Indvendigt areal: | 43 m² + hems 12 m² |
| Tag: | Ca 67 m², 18 mm |
| Gulvtykkelse: | 18 mm |
| Døre: | 1 x 154 x 198 cm, 1 x 90 x 198 cm. Dobbelt glaseret. Hærdet sikkerhedsglas. 2 x indvendige døre 80 x 198 cm, 1 x indvendige døre 70 x 198 cm |
| Vinduer: | 1 x 154 x 114 cm, 1 x 154 x 88 cm, 2 x 80 x 88 cm, 1 x 51 x 51 cm oplukkeligt vindue. Dobbelt glaseret. Hærdet sikkerhedsglas. |
| Materiale: | Nordisk gran |
| Yderligere Information: | Behandlede fundamentsbjælker, metal vindstiver i vægge, monteringssæt, hærdet glas i vinduer og døre, cylinderlås, tysk fremstillede “tilt and turn” – vinduessystemer, produktmanual og 5 års garanti. |
Dallas – Træhytte Med 2 Værelser Og Hems / 42 M2 / 7 X 7 M / 70 MM
Dallas – 42 + 15 m² premium træhytte med 70 mm vægge og hems
Dallas er en teknisk sværvægter, der er designet til at levere maksimal volumen og strukturel styrke. Med et grundplan på 42 m² og en integreret hems på 15 m² (5 x 3 meter), tilbyder denne træhytte en usædvanlig stor anvendelsesflade. Den er det oplagte valg som et omfattende atelier, et stort teknisk værksted eller et hobbyrum, hvor behovet for både gulvplads og vertikal opbevaring er i højsædet.
Tekniske specifikationer og konstruktion:
-
Massive 70 mm vægge: Dallas er opbygget af 70 mm tykke bjælker i Nordisk gran. Denne ekstreme vægtykkelse sikrer en uovertruffen statisk stabilitet, høj bæreevne og en betydelig termisk masse, der gør hytten ideel til intensiv brug året rundt.
-
Vertikal pladsoptimering (Hems): Den 15 m² store hems udnytter bygningens højde effektivt. Det gør det muligt at adskille depotfunktioner eller hvilezoner fra stueplanets primære arbejdsareal, hvilket optimerer den funktionelle logistik i hytten.
-
Avanceret tysk vinduessystem: Hytten er udstyret med “tilt and turn”-vinduer i høj teknisk kvalitet. Dette system giver mulighed for præcis ventilationsstyring og sikrer en tæt, formstabil lukning, der er modstandsdygtig over for det skandinaviske vejrlig.
-
Robust fundamentskonstruktion: Bygningen hviler på 94 mm tykke, præbehandlede fundamentsbjælker. Sammen med de 18 mm massive gulvplanker sikrer dette en ekstremt stabil base, der er dimensioneret til tungt inventar og hyppig færdsel.
Funktionalitet og dagslys:
-
Hærdet dobbelt sikkerhedsglas: Samtlige vindues- og dørpartier er monteret med to-lags hærdet sikkerhedsglas (termoruder). Dette minimerer varmetab og sikrer en robust facade med maksimalt dagslysindtag, hvilket er essentielt for et sundt arbejdsmiljø.
-
Helårsoptimering: Ved at supplere med vores dedikerede isoleringskit til både tag og gulv kan Dallas nemt opgraderes til en energieffektiv bygning, der opretholder et stabilt indeklima uanset udetemperaturen.
-
Nordisk kvalitet: Alt tømmer er fremstillet af langsomtvoksende Nordisk gran med høj fiberdensitet, hvilket minimerer svindrevner og sikrer en lang teknisk levetid.
En værdifast og omfattende løsning: Dallas er for dig, der kræver det maksimale af dit uderum. Den massive 70 mm profil og den smarte udnyttelse af kvadratmeterne gør denne træhytte til en af de mest driftssikre og alsidige modeller til store visioner i haven.














