Standardkonstruktion:
Håndlavet konstruktion i massive bjælker
Udvendig i naturtræ med sandblæst og malet finish
Fuldt isoleret
Vandtæt gulvbase i krydsfiner
Vinduer i trærammer med termoruder og spejleffekt-solfilm
Indvendige døre
Forberedt til græstag
Inkluderede funktioner:
Fuldt udstyret køkken med skabe, vask og bordplade
Badeværelse med bruser, toilet og håndvask
Indbygget soveområde (til 160×200 cm seng)*
Halv hems til ekstra soveplads eller opbevaring
Opbevaringsrum med tilslutning til vaskemaskine
Indvendig og udvendig belysning
Stikkontakter i hele huset
Spejleffekt-solfilm på vinduer for privatliv og varmeregulering
Holdbart, vandtæt laminatgulv
* Sengeramme ikke inkluderet
** Madras ikke inkluderet
Tekniske specifikationer:
Støjsvag mekanisk ventilation i badeværelset
Naturlig ventilation i stue- og soveområder
Elektrisk gulvvarme i alle rum
50 L elektrisk vandvarmer
Installeret indvendig og udvendig belysning
Bygget til alle årstider – Isoleret træhytte
Den fremragende isolering gør HyggeHut klar til benyttelse hele året. En kombination af fåreuld i bjælkesamlingerne (U-værdi væg: 0,56 W/(m²K)), PIR-isolering i gulvet (U-værdi: 0,19 W/m²K) og mineraluld i taget (U-værdi: 0,17 W/m²K) sikrer minimale varmeomkostninger og maksimal komfort. Højkvalitets trærammevinduer med termoglas og solreflekterende spejlfilm beskytter mod varme om sommeren og kulde om vinteren. Elektrisk gulvvarme i alle rum giver en jævn og behagelig varme.
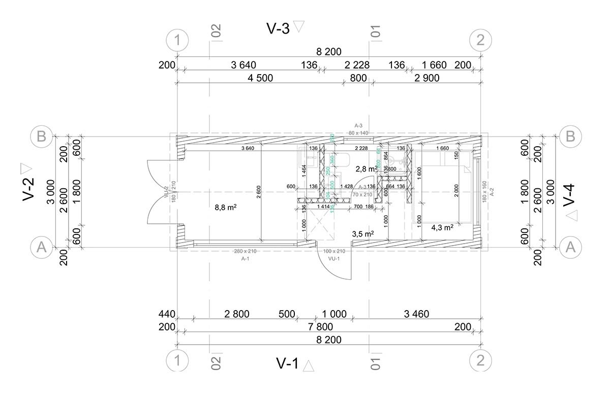
| Eksterne dimensioner: | 8,2 x 3 m |
| Samlet højde: | 3,85 m |
| Vægtykkelse: | 200 mm |
| Indvendigt areal: | 20 m² + 7 m² hems |
| Glas: | Dobbelt glaseret. Hærdet sikkerhedsglas |






















